EASY KITCHEN DESIGNS
Unites Wholesaling Est. 1996
CALL 347-335-6057
2176 71st Street
Brooklyn
,
NY
11234
ph:
347-335-6057
wen
@brooklyn
wholesale
kitchen
.com
Home
3D 2020 DESIGN
Product Gallery #1
PRODUCTS #2 CNC Cabinetry
PRODUCTS #3 Fabuwood
PRODUCTS #4 Alvic Luxe Zenit Syncron
PRODUCTS #5 Wolf USA Maple
PRODUCTS #6 LifeArt Cabinetry
About Us
Finished PROJECTS
Finished Projects Page 2
Contact Us
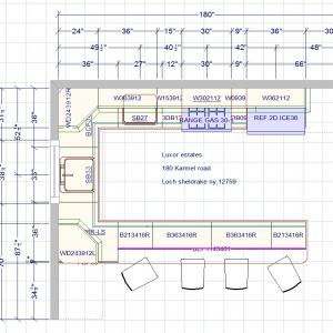
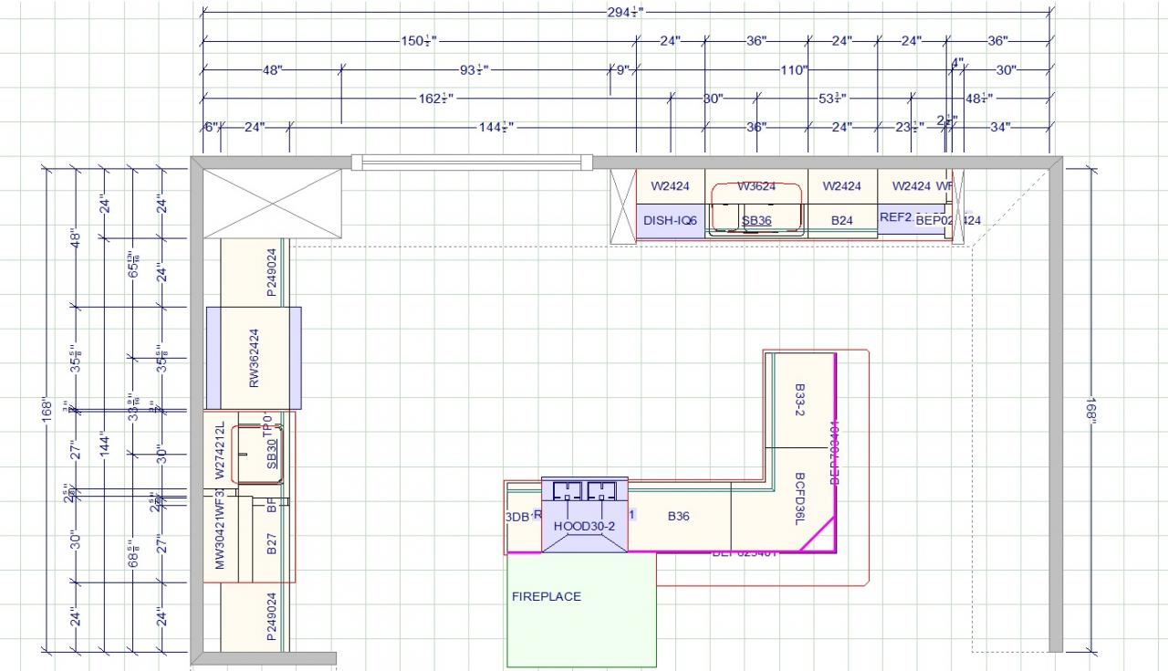
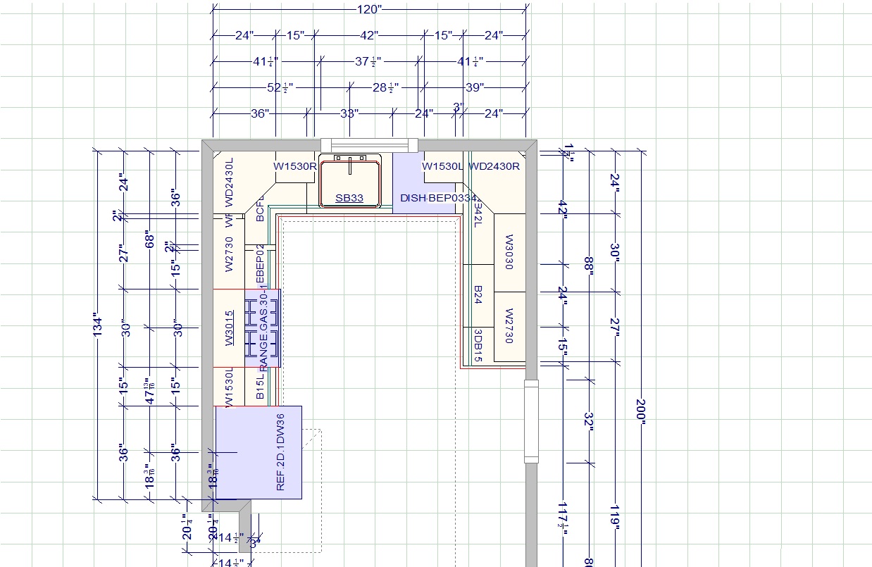
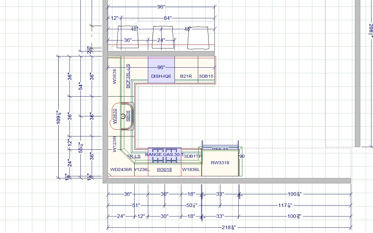
3D 2020 DESIGN
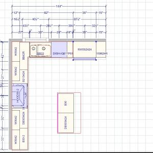
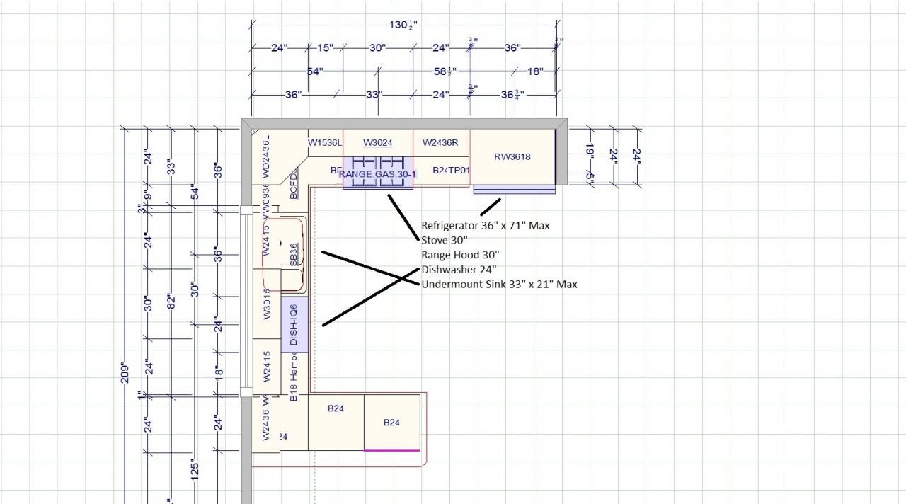
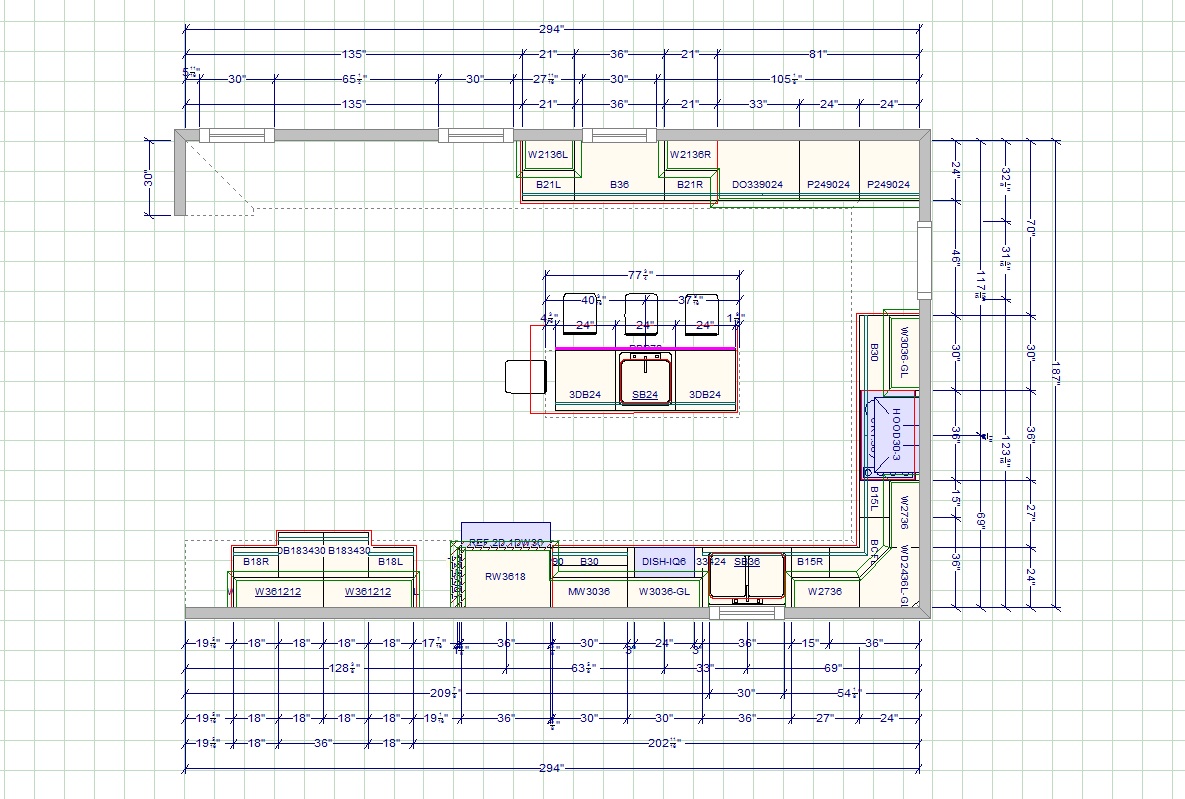
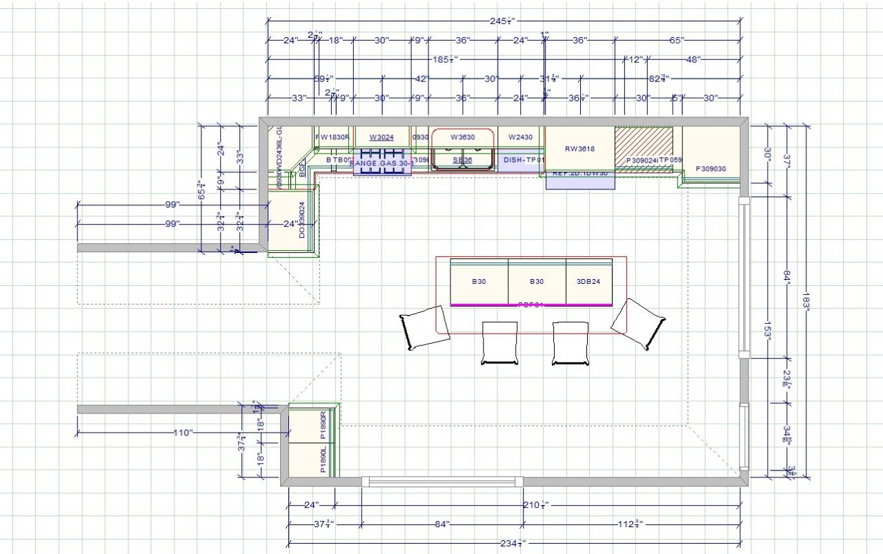
KITCHEN DESIGN EXPERTS:
This is the first step of any kitchen project. The measuring and 3D Layout that our company services provides.
2176 71st Street
Brooklyn
,
NY
11234
ph:
347-335-6057
wen
@brooklyn
wholesale
kitchen
.com